借りる富山の賃貸物件探しは、サンホームにおまかせください!

事務所 婦中町速星テナントビル 2号室

賃料 242,000 管理費等 0 円
敷金 440,000円 礼金 242,000
交通 JR高山本線 速星/徒歩14分
JR高山本線 婦中鵜坂/徒歩30分
JR高山本線 千里/徒歩65分
所在地 富山県富山市婦中町速星1924番地5
地図を見る
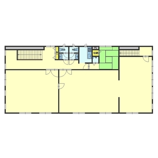
間取 事業 専有面積 220m²

視認性良し!事務所におすすめです!

建物情報

物件名
婦中町速星テナントビル
建築構造
鉄骨造
築年月
2001年10月
階建
3階建
総戸数
0戸
住所
富山県富山市婦中町速星1924番地5
沿線・駅
JR高山本線 速星/徒歩14分
JR高山本線 婦中鵜坂/徒歩30分
JR高山本線 千里/徒歩65分

部屋情報

賃料
242,000円
共益費
0円
敷金
440,000円
償却金/敷引
なし
礼金
242,000
保険
要確認
入居可能日
要確認
契約期間
2年
取引態様
一般媒介
借家区分
普通賃貸借
部屋(区画)名称
2
階/方角
2階/向
間取
事業
専有面積
220m²
駐車場
有 7,700円
町内会費
-
リフォーム
-
リノベーション
-
設備
・プロパンガス ・上水道 ・下水道
こだわり内容
-
備考
分割貸し 駐車場は縦列7,000円で3区画まで契約可能(要相談) 連帯保証人要(審査により保証会社の可能性あり) 施設使用料(光熱費)定額30,000円 敷金・施設使用料は業種により要相談 事務所用途
情報更新日
2026/03/19
次回更新予定日
2026/04/30

周辺環境

お問い合わせフォーム

  1. お問い合わせ内容を入力する
  2. お問い合わせ内容を確認する
  3. お問い合わせ完了
この物件に対する
ご質問・ご相談など

お電話でお問い合わせの際はこちら(076)492-1360

お問合せ内容
お名前必須
漢字
フリガナ
メールアドレス必須
 
ご職業
 
ご住所
郵便番号
住所
ご連絡先
電話
FAX
携帯電話
ご希望の連絡先 ご希望の連絡時間
来店希望日時
  分頃
入居人数
人数 世帯主年齢
その他項目
ご予算
入居時期
  • お問い合わせにて入力し送信していただきましたお客様の個人情報は、
    以下のプライバシーポリシーに同意していただいたものとして利用させていただきます。
    収集目的・利用・提供の範囲、お客様の個人情報に関するお問い合わせに関する詳細は
    プライバシーポリシーに記載されていますのでご確認ください。
  • お客さまのプライバシー保護のため、
    SSL暗号化通信を採用しています。

個人情報のお取扱いについて

当社は、個人情報を以下の目的で利用させて頂きます。

  1. 不動産の売買契約又は賃貸借契約の相手方を探索すること、売買、賃貸借、仲介、管理等に関する契約(連帯保証契約を含む)を締結すること及び契約に基づく役務を提供すること
  2. 不動産の売買、賃貸借、仲介、管理等に関する情報を提供すること
  3. 1、2の目的を達成するために必要な範囲で、契約の相手方及び売買・賃貸借希望者、他の宅地建物取引業者、指定流通機構、物件情報を書面又はインターネットで提供する者・団体・広告会社、融資に関わる金融機関、登記等に関わる司法書士その他専門家、提携損害保険会社、不動産管理業者、保証委託会社又はお客様の同意を得た第三者に対して提供すること
    1. 契約が成立した場合には、その年月日、成約価格等を指定流通機構に通知致します。
    2. 指定流通機構は、物件情報及び成約情報(成約情報は、売主様・買主様・貸主様・借主様の氏名を含まず、物件の概要・契約年月日・成約価格などの情報で構成されています)を指定流通機構の会員たる宅地建物取引業者や公的な団体に電子データや紙媒体で提供することなどの宅地建物取引業法に規定された指定流通機構の業務のために利用致します。

      1 提供される情報は、氏名、住所、電話番号、物件情報、成約情報その他必要な項目です。

      2 提供は、書面、電話、電子メール、インターネット、広告媒体等の手段で行います。

      3 ご本人様からお申し出がありましたら、提供は中止致します。

      ※専属専任媒介契約、専任媒介契約が締結された場合には、宅地建物取引業法に基づき、指定流通機構への登録及び成約情報の通知が宅地建物取引業者に義務付けられます。

  4. 上記1及び2の役務、情報を提供するために郵便物、電話、電子メール等により連絡すること
  5. お客様からのお問い合わせに応じるため及び4の目的を達成するために必要に応じて保管すること
  6. 宅地建物取引業法第49条に基づく帳簿として及びその資料として保管すること
  7. 不動産の売買、賃貸借等に関する価格査定を行うこと
    なお、価格査定に用いた成約情報につきましては、宅地建物取引業法第34条の2第2項に規定する「意見の根拠」として仲介の依頼者に提供することがあります。

    1 提供される情報は、売主様・買主様・貸主様・借主様の氏名を含まず、成約物件の特定が困難となる工夫を施した物件の概要・成約価格などの項目です。

    2 提供は、書面、電子メール等の手段で行います。

    3 ご本人様からお申し出がありましたら、提供は中止致します

  8. 市場動向分析を行うこと

【各種お問合せ・相談窓口】 株式会社とやまサンホーム(個人情報取扱事業者) 総務
〒939-8271 富山市太郎丸西町1丁目7-9
電話:076-492-1350   FAX:076-492-4334
お問い合わせはこちらから
※お客様の個人情報の開示、訂正、利用停止等のお申し出につきましては、こちらまでご連絡下さい。

  • ※プライバシポリシーに同意される方はチェックボックスをクリックしお問い合わせフォームをご利用下さい。
    ※同意されない場合はお問い合わせフォームをご利用することができません。

お電話でのお問い合わせ賃貸

TEL(076)492-1360

メールでのお問い合わせ

お問合せフォーム

  • 富山店

    株式会社とやまサンホーム 
    富山店

    売買・賃貸・リフォーム・一級建築士事務所

    〒939-8271 富山市太郎丸西町1丁目7番9Google map

  • 高岡店

    株式会社とやまサンホーム 
    高岡店

    売買・リフォーム

    〒933-0874 高岡市京田49番地Google map

富山店

株式会社とやまサンホーム 
富山店

売買・賃貸・リフォーム・一級建築士事務所

富山市太郎丸西町1丁目7番9

Google map
高岡店

株式会社とやまサンホーム 
高岡店

売買・リフォーム

高岡市京田49番地

Google map