富山の賃貸物件探しは、サンホームにおまかせください!
事務所 GEMビル 3号室
| 賃料 | 110,000円 | 管理費等 | 0 円 |
|---|---|---|---|
| 敷金 | 440,000円 | 礼金 | 110,000円 |
| 交通 |
富山ライトレール 奥田中学校前/徒歩10分
富山ライトレール 下奥井/徒歩16分 地鉄バス 奥井/徒歩4分 |
所在地 | 富山県富山市四ツ葉町22-30 地図を見る |
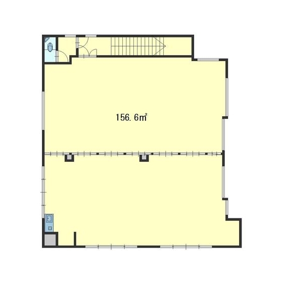
| 間取 | 事業 | 専有面積 | 175m² |
産業道路沿いで視認性も良し!
建物情報
- 物件名
- GEMビル
- 建築構造
- 鉄骨造
- 築年月
- 1986年10月
- 階建
- 3階建
- 総戸数
- 3戸
- 住所
- 富山県富山市四ツ葉町22-30
- 沿線・駅
-
富山ライトレール 奥田中学校前/徒歩10分
富山ライトレール 下奥井/徒歩16分
地鉄バス 奥井/徒歩4分
部屋情報
- 賃料
- 110,000円
- 共益費
- 0円
- 敷金
- 440,000円
- 償却金/敷引
- なし
- 礼金
- 110,000円
- 保険
- 要確認
- 入居可能日
- 要確認
- 契約期間
- 2年
- 取引態様
- 代理
- 借家区分
- 普通賃貸借
- 部屋(区画)名称
- 3
- 階/方角
- 3階/東向
- 間取
- 事業
- 専有面積
- 175m²
- 駐車場
- なし(要確認)
- 町内会費
- -
- リフォーム
- -
- リノベーション
- -
- 設備
- ・プロパンガス ・上水道 ・下水道 ・トイレ別室
- こだわり内容
- -
- 備考
- 保証会社加入要<初回:総賃料×100%(最低4万円)・更新:総賃料×10%・月額手数料330円> 火災保険加入要 入居日相談 現状渡し 駐車場は近隣にて
- 情報更新日
- 2026/02/01
- 次回更新予定日
- 2026/05/10












